{"pluginID":"1","url":"westminster-homes-for-rent"}
1905 Chalcis Dr. E41
Lafayette, CO 80026
Full Gallery
Video Tour
Property Details
$1,600.00
USD / Month
2 Beds
Beds
1
Bath
1002
sqft
•
For Rent
Building Type:
Multiplex
Deposit:
$1,600.00
Pets:
Yes
Date Available:
Immediately
Pet Type:
Dogs
1905 Chalcis Dr. - E41 Lafayette, CO 80026
End Unit Condo in Centaur Village West | $1600/month
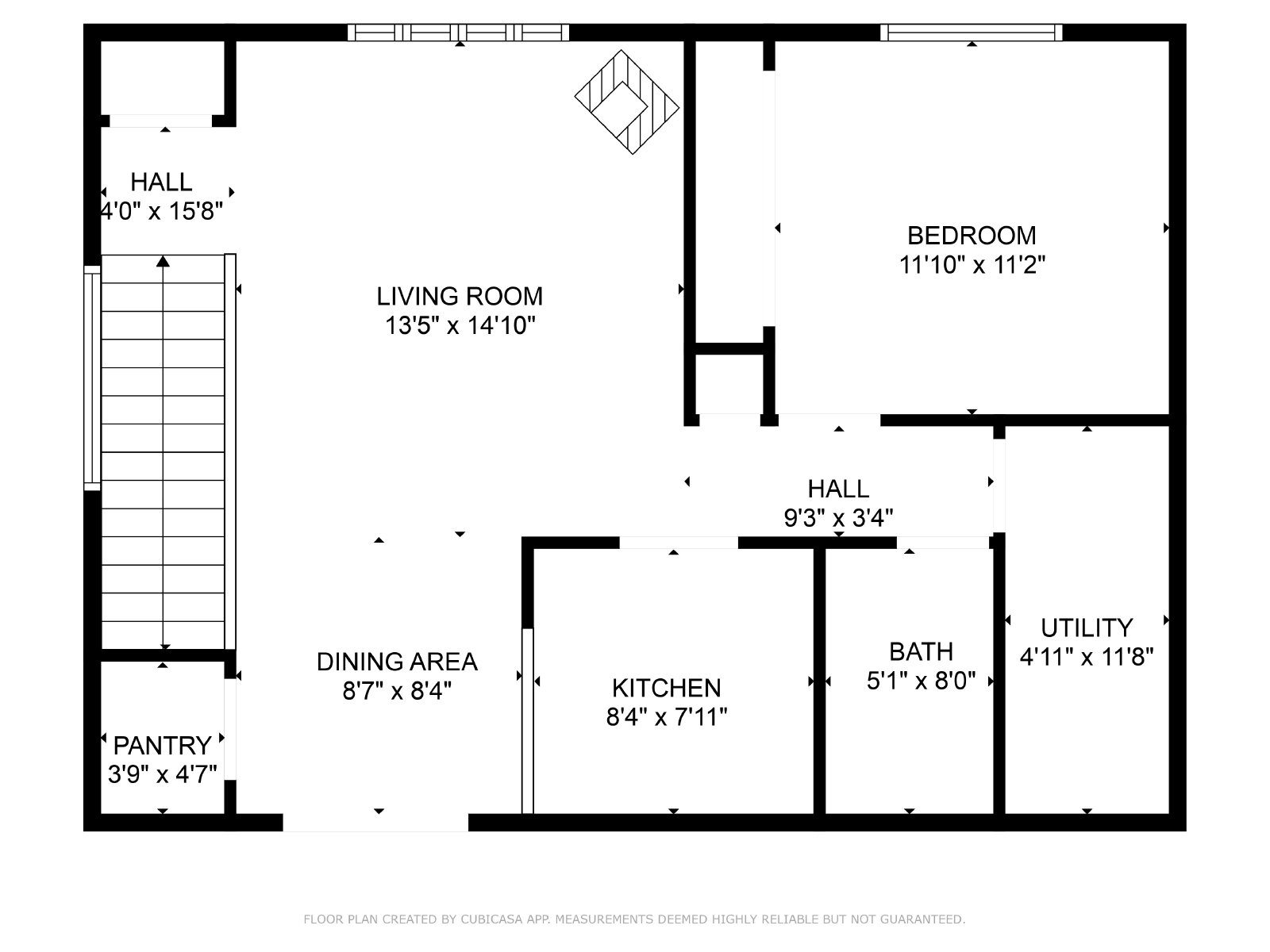
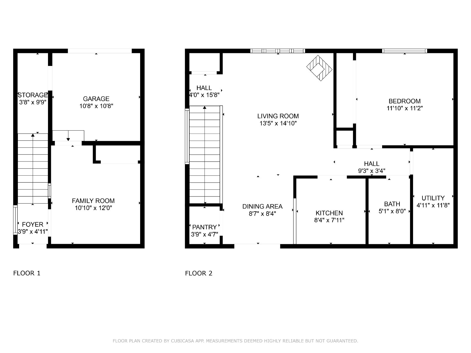
Welcome to 1905 Chalcis Dr. Unit E41 in Lafayette, CO! This charming end unit in Centaur Village West Condos offers a versatile floor plan with multiple living options.
The first bedroom is conveniently located off the front door and can be used as a bedroom or office. Upstairs, you’ll find a bright living room with a cozy fireplace, dining area, kitchen, second bedroom, and full bathroom. The utility room includes a washer and dryer, and 2 window A/C units are provided for your comfort.
Enjoy the convenience of a small garage for bikes, a motorcycle, or extra storage, along with a large outdoor storage closet and off-street parking. The community offers easy access to trails, shopping, restaurants, public transportation, and entertainment.
Property Highlights
Rent: $1,750/month
2 Bedrooms | 1 Bathroom
End unit with flexible layout
Living room with fireplace
Dining area and kitchen
In-unit washer and dryer
2 window A/C units
Small garage for storage, bikes, or motorcycle
Large outdoor storage closet
Off-street parking
Great location near trails, shopping, and dining
Lease Details
Security Deposit: One month’s rent
Lease Term: 12 months
Pets: 1 small dog negotiable
No smoking or vaping
Available: Move-in ready
Applicant has the right to provide us with a Portable Tenant Screening Report (PTSR) that is not more than 30 days old, as defined in Section 38-12-902(2.5), Colorado Revised Statutes. The portable tenant screening report must be provided to the landlord directly by the consumer reporting agency and can be no more than 30 days old. If Applicant provides a PTSR, we are prohibited from:
a) Charging Applicant a rental application fee; or
b) Charging Applicant a fee for access to or use of the PTSR.
Welcome to 1905 Chalcis Dr. Unit E41 in Lafayette, CO! This charming end unit in Centaur Village West Condos offers a versatile floor plan with multiple living options.
The first bedroom is conveniently located off the front door and can be used as a bedroom or office. Upstairs, you’ll find a bright living room with a cozy fireplace, dining area, kitchen, second bedroom, and full bathroom. The utility room includes a washer and dryer, and 2 window A/C units are provided for your comfort.
Enjoy the convenience of a small garage for bikes, a motorcycle, or extra storage, along with a large outdoor storage closet and off-street parking. The community offers easy access to trails, shopping, restaurants, public transportation, and entertainment.
Property Highlights
Rent: $1,750/month
2 Bedrooms | 1 Bathroom
End unit with flexible layout
Living room with fireplace
Dining area and kitchen
In-unit washer and dryer
2 window A/C units
Small garage for storage, bikes, or motorcycle
Large outdoor storage closet
Off-street parking
Great location near trails, shopping, and dining
Lease Details
Security Deposit: One month’s rent
Lease Term: 12 months
Pets: 1 small dog negotiable
No smoking or vaping
Available: Move-in ready
Applicant has the right to provide us with a Portable Tenant Screening Report (PTSR) that is not more than 30 days old, as defined in Section 38-12-902(2.5), Colorado Revised Statutes. The portable tenant screening report must be provided to the landlord directly by the consumer reporting agency and can be no more than 30 days old. If Applicant provides a PTSR, we are prohibited from:
a) Charging Applicant a rental application fee; or
b) Charging Applicant a fee for access to or use of the PTSR.
Features and Amenities
Amenities
- Air Conditioning
- Dryer
- Fireplace
- Storage
- Washer
Flooring
- Carpet
- Ceramic Tile
- Hardwood
Kitchen
- Dishwasher
- Electric Stove
- Freezer
- Refrigerator
Outdoor
- Deck / Balcony
- Lawn
Rooms
- Dining Room
- Laundry Room
- Living Room
- Primary Bedroom
